Find land

土地を探す

TOP > 土地を探す > 物件詳細

住宅用土地

所在地 松本市大字笹賀 3792-1の一部
価格 1071.1 万円
土地面積公簿  202.37㎡ (61.21坪)
坪単価17.5万円

担当者より

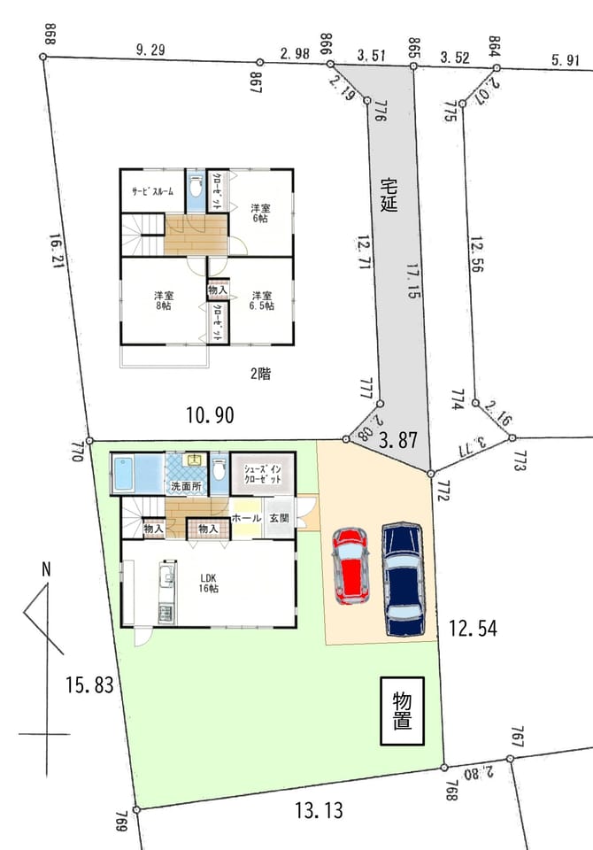
建物配置シミュレーション図

建物配置シミュレーション図

/

所在地 松本市大字笹賀 3792-1の一部 区画名  10区画
価格 1071.1万円 坪単価 坪単価17.5万円
土地面積 公簿  202.37㎡ (61.21坪) 私道負担面積 あり 36.37㎡ 私道負担割合 1 / 1
地目 用途地域 無指定
建ぺい率 60% 容積率 200%
適する用途 住宅用土地 都市計画法 調整区域
手数料 引渡 相談
湯権 下水道 公共下水道
通学区 松本市立菅野小学校 (1000m)
松本市立菅野中学校 (500m)
その他一時金
設備 建築条件なし・セットバック済・プロパンガス・上水道・下水道・電気
接道状況 方角:北 道路幅員:4m 公私区分:公道 接面:3.51m 
交通 電車: 篠ノ井線村井駅 距離2000m 徒歩25分 車6分
バス: 空港今井線線 菅野中学校前バス停 距離500m 徒歩7分 最寄り駅までバス乗車23分
高速道路: 長野道 塩尻北I.C. 車10分 
備考 上水道分担金31,400円。
下水道受益者負担金460円/㎡。
建築確認申請前に都市計画法施行規則第60条証明の申請要。
管理番号 取引態様 一般媒介
最終更新日 2026-01-30
資料を印刷する

pin_dropマップ

※物件位置が表示されていない場合もあります。 正確な位置は取り扱い会社へお問い合わせください

大きな地図で見るopen_in_new

mail物件のお問い合わせ

物件情報 物件番号:449307 / 住宅用土地 / 松本市大字笹賀3792-1の一部 / 価格:1071.1万円
お名前 必須
フリガナ 必須
電話番号 必須
FAX
※FAXで資料送付をご希望の方は、必ず入力してください。
メールアドレス 必須
資料送付先 郵便番号 
住所 
※郵送で資料送付をご希望の方は、必ず入力してください。
お問い合わせ種別



ご質問内容

個人情報のお取り扱いについて確認の上送信ください

リンク集 あたらしい暮らしに役立つリンクをまとめました
トップへ戻る