Find building

建物を探す

TOP > 建物を探す > 物件詳細

貸店舗

所在地 塩尻市大字宗賀床尾
賃料 15 万円
専有面積281.05㎡(85.01坪)
礼金 なし
敷金 総額60万円

担当者より

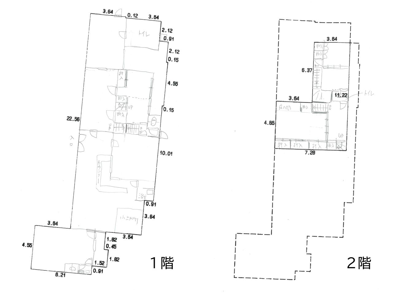
概略図

概略図

駐車場(北側)

駐車場(北側)

正面入口

正面入口

/

所在地 塩尻市大字宗賀床尾
建物名・部屋番号 宗賀旧ドライブイン  共益費
貸階数 総階数 2階 地下1階 
構造 木造 完成年月 1971年
手数料 引渡/入居日 相談
専有面積 281.05㎡(85.01坪) 消費税内税額
更新料 契約期間 2年
保険 保証金
その他一時金
駐車場 有 
設備 トイレ・飲食店可・24時間利用可・プロパンガス
交通 電車: 中央本線洗馬駅 距離1600m 徒歩20分 車3分
電車: 篠ノ井線塩尻駅 距離3500m 徒歩44分 車10分
高速道路: 長野道 塩尻I.C. 車14分 
備考 調整区域内の為用途変更不可。レストラン、ドライブインの経営に限る。
下水道未接続、接続の場合は取り出し必要。(工事費約40万+受益者負担金750円×1069㎡→801750円)合計約120万円借主負担。
管理番号 取引態様 一般媒介
最終更新日 2026-03-03
資料を印刷する

pin_dropマップ

※物件位置が表示されていない場合もあります。 正確な位置は取り扱い会社へお問い合わせください

大きな地図で見るopen_in_new

mail物件のお問い合わせ

物件情報 物件番号:445277 / 貸店舗 / 塩尻市大字宗賀床尾 / 価格:15万円
お名前 必須
フリガナ 必須
電話番号 必須
FAX
※FAXで資料送付をご希望の方は、必ず入力してください。
メールアドレス 必須
資料送付先 郵便番号 
住所 
※郵送で資料送付をご希望の方は、必ず入力してください。
お問い合わせ種別



ご質問内容

個人情報のお取り扱いについて確認の上送信ください

リンク集 あたらしい暮らしに役立つリンクをまとめました
トップへ戻る